KORRUSEPLAANIDE DIGITALISEERIMINE

Tellijal soovil sai tehtud paberkandjal olevatest korruseplaanidest korrektsed ja täpsed plaanid pdf ja dwg formaati.

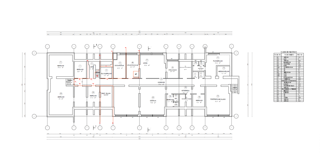
Näiteks keldrikorruse plaan paberil:

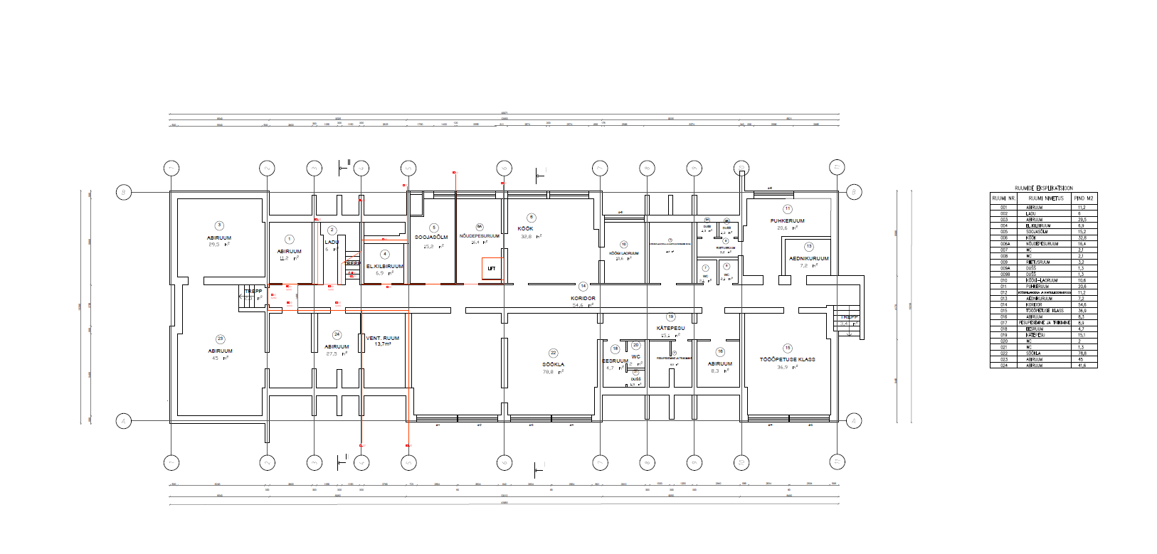
Ja hiljem PDF kujul


Comments

“KORRUSEPLAANIDE DIGITALISEERIMINE” on saanud ühe vastuse

  1. Hi, this is a comment.
    To get started with moderating, editing, and deleting comments, please visit the Comments screen in the dashboard.
    Commenter avatars come from Gravatar.

Lisa kommentaar

Sinu e-postiaadressi ei avaldata. Nõutavad väljad on tähistatud *-ga